Bibliotheksleiter
Das erste Projekt für Säge und Oberfräse - gleich aus unbesäumtem Holz und gleich ein Weihnachtsgeschenk ...
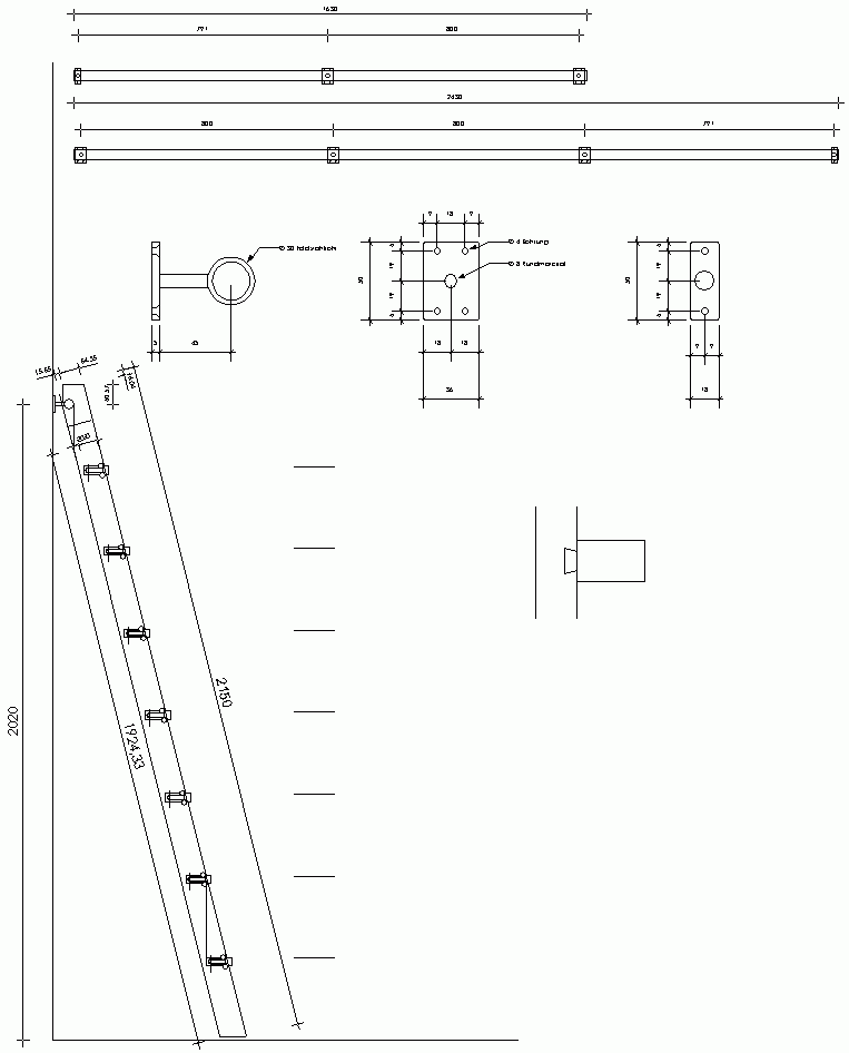
Eine Bibliotheksleiter aus europäischer Kirsche für das heimische Wohnzimmer, nicht ausschliesslich aus Holz, sondern durch die Verwendung von Filz als Gleitmaterial und verschweissten Edelstahlrohren als Führung fast schon ein gestalterisch zurückhaltendes High-Tech-Möbel mit klassischen Holzverbindungen, die sich aber nicht wichtig machen.
Am Anfang stand eine relativ sorgfältige Planung, da die Leiter an ein bestehendes Regal passen sollte und man sich mit einem Weihnachtsgeschenk natürlich nicht unbedingt blamieren will - ausserdem war es mein erstes ernsthaftes Projekt, da plant man lieber etwas länger ...
